718-282-6400 cir@citizensintlrealty.com
logo
  •  
  • Buy
  • Rent
  • Sell
  • Listings
    • Our Listings
    • Open Houses
    • Sold Properties
    • Georgia Listings
    • HUDHomestore
  • Agents
  • About
  • Contact Us
  • Fair Housing Notice
  •  
  • Tel: 718-282-6400
 

Three Family House for Sale in Rosebank, Staten Island, NY 10305 | Web ID: 494856 | $1,679,000

Three Family in Rosebank - Church  Staten Island, NY 10305Three Family Church  Staten Island, NY 10305, MLS-494856-2Three Family Church  Staten Island, NY 10305, MLS-494856-3

Request More Information

- Email Me a Copy of this Request
 
 

Photos

Three Family Church  Staten Island, NY 10305, MLS-494856-3
Three Family Church  Staten Island, NY 10305, MLS-494856-3
Three Family Church  Staten Island, NY 10305, MLS-494856-3

AGENT CONTACTS

Citizens International Realty

718-282-6400

718-282-4767

cir@citizensintlrealty.com

Property Description

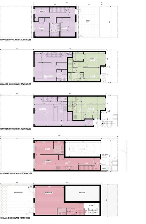
Welcome To Exceptional 3-family Investment Opportunity In Prime Staten Island Location, Staten Island, Ny 10305 This Fully Electric, Gas-free 3-family Home Offers A Total Of 3, 647 Sf Of Living Space Spread Across Multiple Levels, With Private Outdoor Areas. • Unit 1: A Spacious 3-bedroom, 3-bathroom Triplex Located On The 2nd, 3rd, And 4th Floors. Features Include Home Office, Private Terrace, Garage, And Abundant Natural Light. • Unit 2: A Modern 2-bedroom, 1-bathroom Duplex Occupying Parts Of The 2nd And 3rd Floors. Includes A Private Balcony, Open Living Area, And Well-appointed Bedrooms. • Unit 3: A Cozy 1-bedroom, 1-bathroom Apartment With Exclusive Recreation Room At The Cellar And A Private Backyard – Ideal For Relaxation Or Outdoor Entertaining. Great Location – Just Minutes From Public Transportation, Parks, And Shopping. Whether You're Looking For A Multi-generational Living Solution Or A High-potential Rental Property, Is A Must-see. Subject To E&o. Don't Miss This Unique Opportunity To Own A Versatile, Income-generating Property In Staten Island! Mls Approval- No Financial Provided Due To Property Is Vacant

Property Information

Location/Town Rosebank
Area/County Staten Island
Prop. Type Three Family House for Sale
Style Attached
Bedrooms 6
Total Baths 3
3/4 Baths 1
# Stories 4
# of Cars Built-In Garage, Other
Basement Finished
Exterior Stucco
Roof Flat, Pitched, Other
Construction Wood Frame, Steel, Other
Foundation Poured Concrete, Slab Concrete
Yard Back
Lot SqFt 1,349
Heat Other
Electric 220 V
Roof Flat, Pitched, Other
Zoning R-4
Features Central air - split, dishwasher, microwave, stove, terrace

 

View This Property on the Map

 

MORTGAGE CALCULATOR

 
   
Mortgage:
Total Payment:
Note: web mortgage-calculator is a sample only; for actual mortgage calculation contact your mortgage provider
 
footer-logo

Contact Us

       

  • Brooklyn, NY Office: 3017 Beverly Rd, Brooklyn, NY 11226
  • Atlanta, GA Office: 5107 Covington Hwy, Decatur, GA 30035
  • Email: cir@citizensintlrealty.com
  • Phone: 718-282-6400
  • Fax: 718-282-4767
Search   

Links

  • Home
  • Buy
  • Rent
  • Sell
  • Our Listings
  • Open Houses
  • Sold Properties
  • Georgia Listings
  • HUDHomestore
  • About Us
  • Agents
  • Contact Us

Featured Listings

For Rent 2bdr Spacious Two Bedroom With Clean Hardwood Flooring Throughout Apartment 
  ... Read More
Two Family For Sale 5bdr 2bath  east 98th Is A Two Family Consisting Of Three / Two Bedroo...
  ... Read More
Apartment For Rent 2bdr 1bath Modern And Minimalist Unit. Perfect For Students, Newly Weds, Youn...
  ... Read More
Powered by: Fligel.com
+-